Zestienhovensekade 403 – Rotterdam
Ruime en sfeervolle woning met souterrain, diepe tuin en volop mogelijkheden
Aan de geliefde Zestienhovensekade ligt deze verrassend ruime woning met souterrain, diepe achtertuin van maar liefst 12,40 meter en een praktische indeling verdeeld over meerdere woonlagen. Een ideale combinatie van comfortabel wonen en werken aan huis, in een groene en rustige omgeving met de stad binnen handbereik.
De Zestienhovensekade is een karakteristieke en groene kade in het geliefde Overschie. Deze wijk staat bekend om haar dorpse sfeer, historische lintbebouwing en de prettige combinatie van rust en bereikbaarheid. In de directe omgeving vindt u diverse winkels, scholen, sportverenigingen en gezellige horeca. Daarnaast zijn het centrum van Rotterdam, Rotterdam The Hague Airport en belangrijke uitvalswegen (A13 en A20) snel en eenvoudig bereikbaar. Een fijne woonomgeving voor wie rustig wil wonen met alle stedelijke voorzieningen binnen handbereik.
Begane grond
Via de entree komt u binnen in de hal met toegang tot de zeer ruime woonkamer en de trapopgang. De lichte en royale woonkamer beschikt over een prachtige ouderwetse hout openhaard en strekt zich uit over de volledige diepte van de woning en biedt voldoende ruimte voor zowel een comfortabele zithoek als een ruime eettafel. Aan de achterzijde bevindt zich het toilet en de keuken, met directe toegang tot het balkon en de achtertuin. Dankzij de grote raampartijen is er prettig veel daglicht en een fijn uitzicht op het groen.
Souterrain
Een absolute meerwaarde van deze woning is het souterrain, waar zich een grote werkruimte bevindt. Perfect als thuiswerkplek, atelier, hobbyruimte of praktijk aan huis. Een veelzijdige verdieping met volop gebruiksmogelijkheden.
Buitenruimte
De woning beschikt over een lange, diepe achtertuin van circa 12,40 meter diep en 5 meter breed. Een heerlijke plek om te ontspannen, te tuinieren of gezellig buiten te zitten. Dankzij de afmetingen is er altijd wel een plek in de zon of schaduw te vinden.
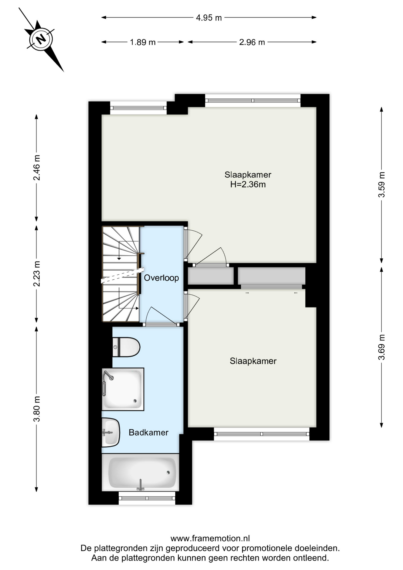
Eerste verdieping
Op de eerste verdieping bevindt zich de overloop met toegang tot twee slaapkamers van goed formaat. De badkamer is compleet uitgevoerd met een ligbad, douche, wastafel en toilet.
Tweede verdieping
De tweede verdieping beschikt over een derde slaapkamer, voorzien van een dakkapel, wat zorgt voor extra ruimte en licht. Ideaal als slaapkamer, logeerkamer of werkkamer.
Afmetingen
Voor de exacte afmetingen verwijzen wij u graag naar de plattegronden.
Bijzonderheden
- Woning gedeeltelijk voorzien van dubbele beglazing;
- Eigen grond;
- Ruime tuin op het noordoosten;
- Verwarming en warm water middels 2020 Atag CV Ketel;
- Energielabel D;
- Bouwjaar 1956;
- Oplevering in overleg.
Bezichtigingsafspraak?
Maak snel een afspraak voor een oriënterende bezichtiging van deze woning.
Is uw eigen woning nog niet verkocht? Wij komen graag bij u langs! Bel ons voor een vrijblijvend verkoopgesprek!
Meetinstructie De Meetinstructie is gebaseerd op de NEN2580. De Meetinstructie is bedoeld om een meer eenduidige manier van meten toe te passen voor het geven van een indicatie van de gebruiksoppervlakte. De Meetinstructie sluit verschillen in meetuitkomsten niet volledig uit, door bijvoorbeeld interpretatieverschillen, afrondingen of beperkingen bij het uitvoeren van de meting.
* Bovenstaande informatie is door ons met de nodige zorgvuldigheid samengesteld. Onzerzijds wordt echter geen enkele aansprakelijkheid aanvaard voor enige onvolledigheid, onjuistheid of anderszins dan wel de gevolgen daarvan.
