Praktisch 3-kamerappartement met balkon in Oud-Mathenesse!
Welkom aan de Schiedamse weg 465 01r! Een charmant en verrassend appartement uit de jaren ’30. Geniet van 2 ruimen slaapkamers met een eigen balkon en een royale woonkamer.
De woning is vlakbij het levendige centrum van zowel Schiedam als Rotterdam en is gelegen in de gezellige wijk Oud-Mathenesse. Wonen op deze locatie betekend alles binnen handbereik hebben. Stap zo op de metro bij Marconiplein of pak de trein vanaf station Schiedam Centrum. Geniet in de buurt van knusse cafés en charmante restaurants. Ook voor je dagelijkse boodschappen hoef je de wijk niet uit de supermarkt, bakker en slager liggen om de hoek met een paar minuten loopafstand. Met de snelweg op maar 2 minuten rijden ben je binnen no-time in de andere nabijgelegen steden.
Indeling:
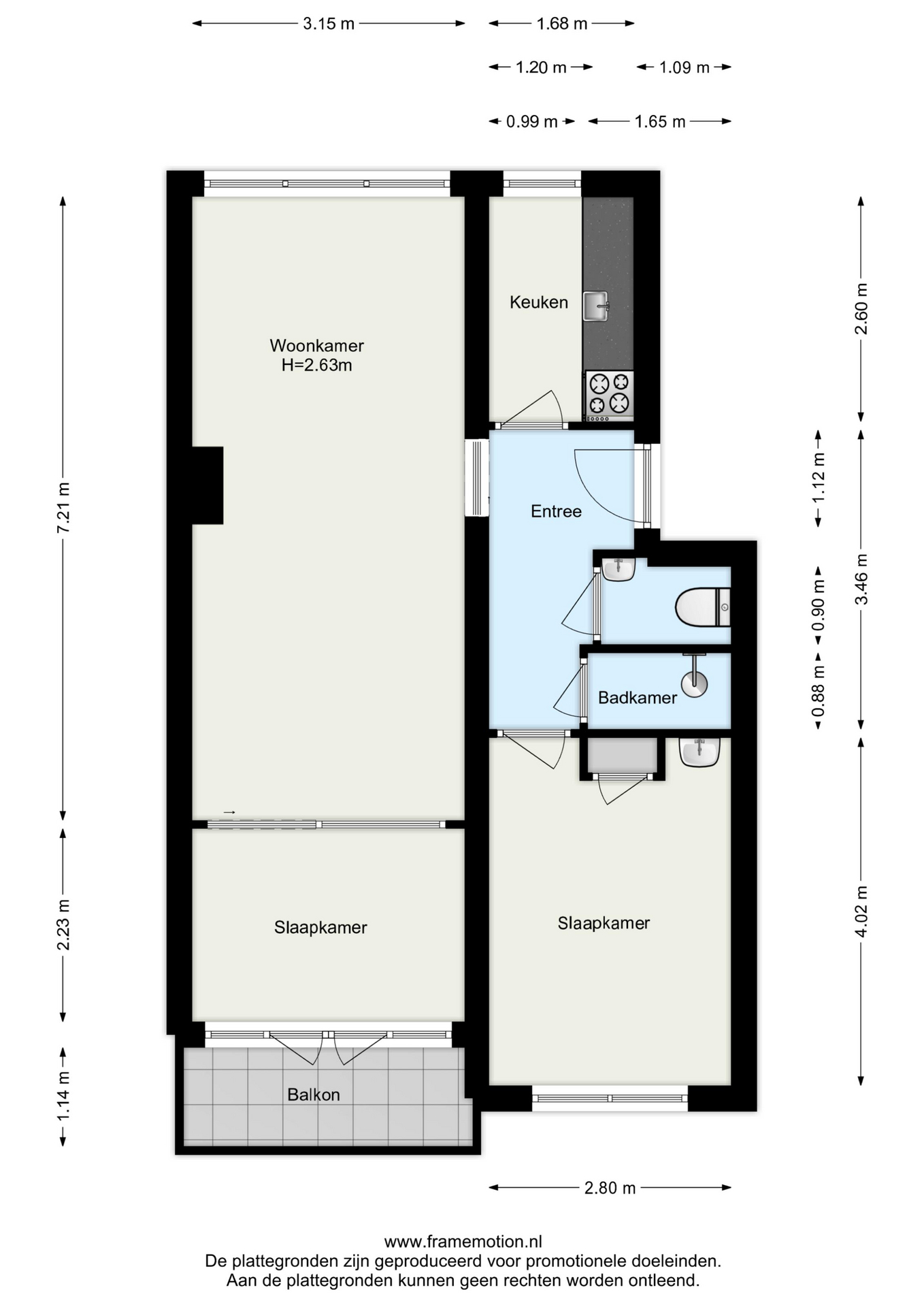
Via de gezamenlijke entree bereik je het appartement op de eerste verdieping.
Je stapt binnen in de lichte hal/entree, die toegang biedt tot vrijwel alle vertrekken van de woning.
Aan de voorzijde bevindt zich de ruime lichte woonkamer. Dankzij de brede raampartijen komt er veel daglicht naar binnen, waardoor het een fijne plek is om te ontspannen of gezellig te dineren met vrienden. Vanuit de hal is er toegang tot de keuken, die compact maar praktisch is ingedeeld en beschikt over een kookplaat, afzuigkap en spoelbak.
Via de hal kom je ook bij de badkamer, voorzien van een ruime douche.
Het toilet bevind zich seperaat in de hal.
Het appartement telt twee slaapkamers. De eerste slaapkamer grenst aan de woonkamer en biedt toegang tot het balkon, waar je op zomerse dagen heerlijk kunt genieten van de buitenlucht. De tweede slaapkamer ligt aan de andere zijde van de woning en is iets ruimer – ideaal als hoofdslaapkamer, werkkamer of logeerkamer. Tevens beschikt de tweede slaapkamer over een handige wasbak.
Afmetingen:
Voor de exacte afmetingen verwijzen wij u graag naar de plattegronden.
Bijzonderheden:
- Bouwjaar 1937;
- Eigen grond;
- Verwarming middels airco;
- Warm water middels doorstroomboiler;
- Balkon op het Noorden;
- Gehele woning voorzien door dubbel glas;
- Energielabel A;
- Actieve VvE, bijdrage € 149,50 per maand;
- Ouderdomsclausule;
- Asbestclausule;
- Oplevering in overleg;
- Aan bovenstaande tekst kunnen geen rechten worden ontleend.
Bezichtigingsafspraak?
Maak snel een afspraak voor een oriënterende bezichtiging van deze woning.
Is uw eigen woning nog niet verkocht? Wij komen graag bij u langs! Bel ons voor een vrijblijvend verkoopgesprek!
Meetinstructie
De Meetinstructie is gebaseerd op de NEN2580. De Meetinstructie is bedoeld om een meer eenduidige manier van meten toe te passen voor het geven van een indicatie van de gebruiksoppervlakte. De Meetinstructie sluit verschillen in meetuitkomsten niet volledig uit, door bijvoorbeeld interpretatieverschillen, afrondingen of beperkingen bij het uitvoeren van de meting.
* Bovenstaande informatie is door ons met de nodige zorgvuldigheid samengesteld. Onzerzijds wordt echter geen enkele aansprakelijkheid aanvaard voor enige onvolledigheid, onjuistheid of anderszins dan wel de gevolgen daarvan.
