Ruim split-level appartement met vernieuwde keuken, badkamer én privéparkeerplaats voor de deur
Op zoek naar een woning die de voordelen van een eengezinswoning combineert met het comfort van een appartement? Dan is dit goed onderhouden split-level appartement van maar liefst 127 m² woonoppervlakte, verdeeld over vier woonlagen, zeker een bezichtiging waard.
Het appartement ligt in de geliefde, groene en ruim opgezette wijk Oostgaarde in Capelle aan den IJssel. Hier woon je rustig, maar toch centraal: op slechts 15 minuten rijden van het bruisende centrum van Rotterdam. Metrostation De Terp, winkelcentrum De Terp en De Koperwiek, scholen, sportfaciliteiten en gezondheidscentra liggen allemaal dichtbij. Daarnaast vind je volop recreatiemogelijkheden in de nabije groengebieden en natuurreservaat Hitland.
Sinds 2019 is de woning grondig gemoderniseerd en energiezuiniger gemaakt. Zo zijn in 2020 zowel de keuken als de badkamer vernieuwd, zijn alle wanden en plafonds gestuct en is de elektra volledig vervangen. Ook is er vloerverwarming met vloerisolatie aangebracht. De ramen zijn in 2019 en 2023 vervangen door HR++ glas en eind 2024 is de cv-ketel vernieuwd voor een energiezuinig exemplaar. Dankzij deze verbeteringen beschikt de woning nu over een energielabel C, geldig tot 28 november 2026.
Kortom: een ruim, goed onderhouden en instapklaar appartement op een fijne en praktische locatie!
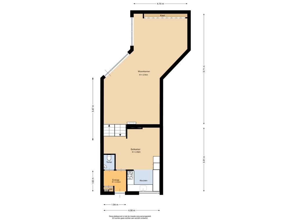
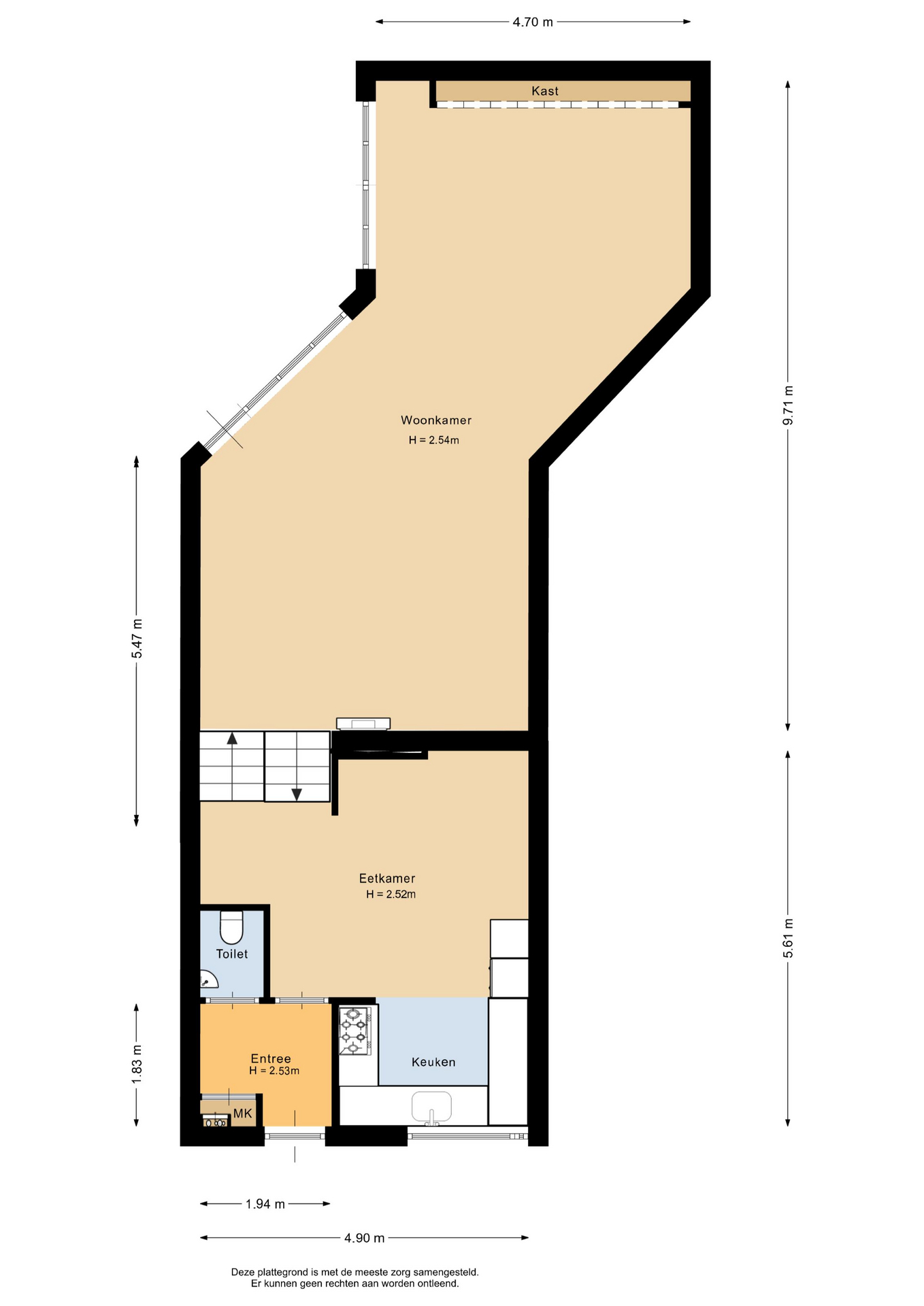
Indeling
Op de begane grond bevindt zich een ruime inpandige berging met diepe kelder. Deze is direct vanaf de straat toegankelijk en kan zelfs als entree worden gebruikt. Voor de deur ligt een eigen parkeerplaats: parkeren is dus nooit meer een probleem.
De hoofdentree ligt op de eerste verdieping. Hier kom je binnen in de sfeervolle woonkeuken (2020) met modern contrast in lichte en donkere tinten en uitgebreide inbouwapparatuur. Vanuit de woonkeuken heb je een fraai zicht op de lager gelegen woonkamer dankzij de speelse split-level indeling.
Via een korte trap bereik je de royale woonkamer (52 m²) met houten vloer, strak stucwerk en inbouwspots. Deze ruimte biedt toegang tot de zonnige achtertuin (noordwesten) waar je tot laat van de zon geniet. De tuin is voorzien van een houten berging en achterom.
Op de tweede verdieping ligt een ruime slaapkamer, die indien gewenst eenvoudig weer kan worden opgesplitst in twee kamers (zoals in de oorspronkelijke situatie).
De derde verdieping beschikt over een tweede slaapkamer met balkon, de moderne badkamer (2020) en een berging met de nieuwe cv-ketel (2024). De vide zorgt hier opnieuw voor de open, speelse indeling. Beide slaapkamers meten ca. 14 en 17 m² en beschikken over een eigen balkon. De badkamer is luxe uitgevoerd met een ligbad, inloopdouche, toilet, dubbele wastafel met meubel en vloerverwarming.
Afmetingen:
Voor de exacte afmetingen verwijzen wij u graag naar de plattegronden
Bijzonderheden:
- Bouwjaar: 1980;
- Woonoppervlakte 127 m²;
- 1 eigen parkeerplaats voor de deur;
- Eventueel extra 2e parkeerplaats erbij te koop;
- Achtertuin op het noordwesten;
- Gehele woning voorzien van HR++ beglazing;
- Verwarming en warm water middels een cv-combiketel (2024);
- Vve bijdrage ca €365,- per maand;
- Energielabel C;
- Oplevering in overleg;
- Aan bovenstaande tekst kunnen geen rechten worden ontleend.
Bezichtigingsafspraak?
Maak snel een afspraak voor een oriënterende bezichtiging van deze woning.
Is uw eigen woning nog niet verkocht? Wij komen graag bij u langs! Bel ons voor een vrijblijvend verkoopgesprek!
Meetinstructie
De Meetinstructie is gebaseerd op de NEN2580. De Meetinstructie is bedoeld om een meer eenduidige manier van meten toe te passen voor het geven van een indicatie van de gebruiksoppervlakte. De Meetinstructie sluit verschillen in meetuitkomsten niet volledig uit, door bijvoorbeeld interpretatieverschillen, afrondingen of beperkingen bij het uitvoeren van de meting.
* Bovenstaande informatie is door ons met de nodige zorgvuldigheid samengesteld. Onzerzijds wordt echter geen enkele aansprakelijkheid aanvaard voor enige onvolledigheid, onjuistheid of anderszins dan wel de gevolgen daarvan.
