Ruim en karaktervol dubbel bovenhuis met eigen entree, royale leefruimtes en heerlijk dakterras!
Welkom aan de Ooievaarstraat 72B! Een charmant en verrassend ruim dubbel bovenhuis. Hier woon je rustig, maar toch vlak bij het bruisende hart van Rotterdam, in een karakteristieke straat met veel sfeer.
De Ooievaarstraat ligt in een geliefde wijk van Rotterdam, met haar gezellige winkels, terrassen en horecagelegenheden. Tevens ligt de woning op korte afstand van het centrum. Diverse supermarkten, scholen en sportfaciliteiten liggen op loopafstand en het openbaar vervoer is uitstekend bereikbaar. Ook de uitvalswegen richting Utrecht, Delft en Den Haag zijn binnen enkele minuten te bereiken.
Kortom: een sfeervolle en ruime woning met drie slaapkamers, een fijn dakterras en een uitstekende ligging — klaar voor een nieuwe bewoner die wil genieten van ruimte, licht en stadse gezelligheid!
Via de trapopgang bereik je de eerste verdieping, waar direct de royale eetkamer met open keuken aan de voorzijde van de woning opvalt. De keuken is modern (2025) en ruim opgezet, perfect voor wie graag kookt en tegelijkertijd contact wil houden met gasten aan tafel. De eetkamer biedt volop ruimte voor een grote eettafel, dé plek voor gezellige etentjes en lange avonden met familie en vrienden.
Centraal in de woning bevindt zich de hal, die toegang geeft tot de overige vertrekken. Hier vind je de nette badkamer met een ruime inloopdouche en wastafelmeubel. Tevens beschikt de hal over een separaat toilet en een praktische wasruimte.
Aan de achterzijde ligt de ruime, lichte woonkamer die door de indeling en de grote ramen een heerlijk gevoel van rust en ruimte creëert.
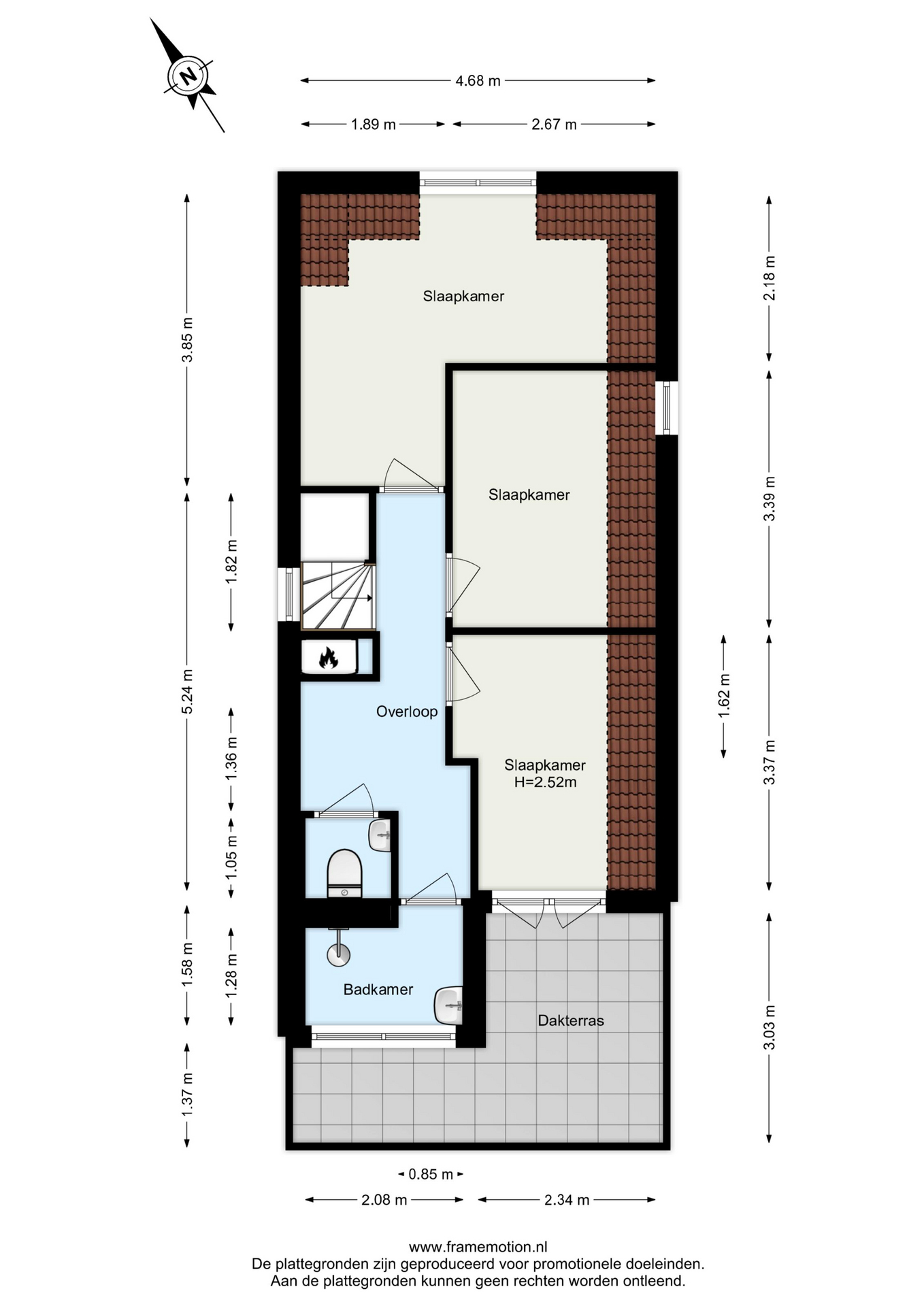
Op de tweede verdieping bevinden zich drie slaapkamers, variërend in formaat, waardoor er volop mogelijkheden zijn voor een gezin, een thuiswerkplek of een logeerkamer. Vanuit de achterste slaapkamer heb je toegang tot het zonnige dakterras — een fijne plek om te ontspannen in de buitenlucht met veel privacy.
De woning is door de jaren heen goed onderhouden en biedt een prettige mix van comfort en karakter.
Afmetingen:
Voor de exacte afmetingen verwijzen wij u graag naar de plattegronden.
Bijzonderheden:
- Bouwjaar 1897;
- Eigen grond;
- Nieuwe keuken uit 2025;
- Verwarming en warm water middels een cv-combiketel, 2020;
- Ruim dakterras op het Zuid-Westen;
- Kunststof kozijnen voorzien van dubbele beglazing;
- Energielabel B;
- Actieve VvE, bijdrage €190- per maand;
- Ouderdomsclausule;
- Asbestclausule;
- Oplevering in overleg;
- Aan bovenstaande tekst kunnen geen rechten worden ontleend.
Bezichtigingsafspraak?
Maak snel een afspraak voor een oriënterende bezichtiging van deze woning.
Is uw eigen woning nog niet verkocht? Wij komen graag bij u langs! Bel ons voor een vrijblijvend verkoopgesprek!
Meetinstructie
De Meetinstructie is gebaseerd op de NEN2580. De Meetinstructie is bedoeld om een meer eenduidige manier van meten toe te passen voor het geven van een indicatie van de gebruiksoppervlakte. De Meetinstructie sluit verschillen in meetuitkomsten niet volledig uit, door bijvoorbeeld interpretatieverschillen, afrondingen of beperkingen bij het uitvoeren van de meting.
* Bovenstaande informatie is door ons met de nodige zorgvuldigheid samengesteld. Onzerzijds wordt echter geen enkele aansprakelijkheid aanvaard voor enige onvolledigheid, onjuistheid of anderszins dan wel de gevolgen daarvan.
