Wonen in hartje Rotterdam met alle comfort van nu!
Op een fantastische locatie, aan de geliefde Noordmolenwerf, bevindt zich dit ruime en praktisch ingedeelde 2-kamerappartement met balkon. Wonen aan het water in het hartje van Rotterdam! De woning is gelegen in een rustige straat midden in het centrum, met de levendigheid van de stad op loopafstand, maar toch heerlijk beschut en comfortabel wonen. Ideaal voor starters, singles of stellen die houden van stads wonen met alle voorzieningen binnen handbereik.
De Noordmolenwerf ligt op een top locatie in het centrum van Rotterdam, op loopafstand van de Meent, de Markthal, de Koopgoot en tal van gezellige cafés en restaurants. Ook openbaar vervoer en uitvalswegen zijn uitstekend bereikbaar.
Indeling
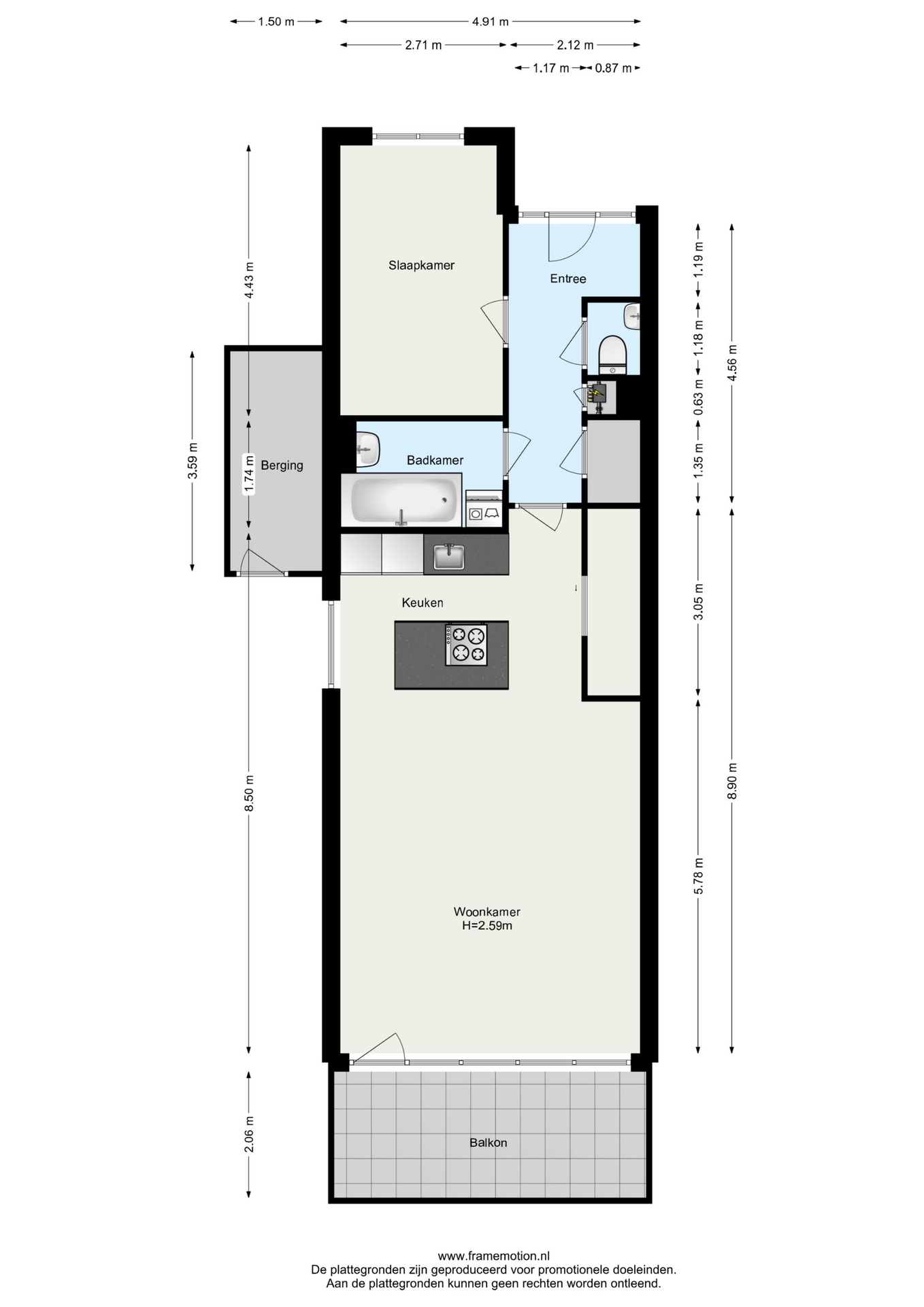
Via de eigen voordeur bereik je het appartement. De ruime hal geeft toegang tot alle vertrekken en biedt meteen een prettige eerste indruk van de woning.
Aan de voorzijde ligt de lichte woonkamer van ruim formaat. Dankzij de grote glazen pui valt er volop daglicht binnen en heb je direct toegang tot het balkon, waar je heerlijk van de buitenruimte kunt genieten, perfect voor jouw ochtendkoffie of een ontspannen avond.
De woonkamer staat in open verbinding met de moderne open keuken, centraal in de woning. De keuken is voorzien van een kookeiland, een spoelgedeelte aan de wand, en praktische inloopkast. Een fijne plek om te koken en te borrelen met vrienden.
Aan de rustige voorzijde van het appartement bevindt zich de ruime slaapkamer, welke voldoende plek biedt voor een tweepersoonsbed én een grote kast. Direct naast de slaapkamer ligt de badkamer, uitgerust met een ligbad met douche, wastafelmeubel en een wasmachineaansluiting.
Verder is er een separaat toilet en extra bergruimte in de hal.
Buiten naast het appartement is een ruime privé berging aanwezig: ideaal voor fietsen, koffers of voorraad.
Afmetingen:
Voor de exacte afmetingen verwijzen wij u graag naar de plattegronden.
Bijzonderheden:
- Energielabel C;
- Privéberging aangrenzend aan de woning;
- Actieve Vereniging van Eigenaren;
- VvE-bijdrage: ca. €265,- per maand + voorschot stookkosten van ca. € 143, -;
- Verwarming en warm water middels stadsverwarming;
- Woonoppervlakte: ca. 70m²;
- Inhoud: ca. 237m³;
- Gelegen op erfpachtgrond lopende tot 31 december 2051, waarvan de canon is afgekocht tot 29 juni 2035;
- Oplevering: In overleg;
- Aan de bovenstaande tekst kunnen geen rechten worden ontleend.
Bezichtigingsafspraak?
Maak snel een afspraak voor een oriënterende bezichtiging van deze woning.
Is uw eigen woning nog niet verkocht? Wij komen graag bij u langs! Bel ons voor een vrijblijvend verkoopgesprek!
Meetinstructie
De Meetinstructie is gebaseerd op de NEN2580. De Meetinstructie is bedoeld om een meer eenduidige manier van meten toe te passen voor het geven van een indicatie van de gebruiksoppervlakte. De Meetinstructie sluit verschillen in meetuitkomsten niet volledig uit, door bijvoorbeeld interpretatieverschillen, afrondingen of beperkingen bij het uitvoeren van de meting.
* Bovenstaande informatie is door ons met de nodige zorgvuldigheid samengesteld. Onzerzijds wordt echter geen enkele aansprakelijkheid aanvaard voor enige onvolledigheid, onjuistheid of anderszins dan wel de gevolgen daarvan.
