Aan de Nicolaas Beetstraat 31 vind je deze sfeervolle woning met veel licht, ruimte en comfort. De woning beschikt over een ruime woonkamer met laminaat vloer, een gezellige eetkamer en een praktische keuken met toegang tot het zonnige balkon op het zuiden.
Met drie slaapkamers, een badkamer met douche en wastafel, een apart toilet en een handige wasruimte is er volop leefruimte voor een gezin of thuiswerk. Dankzij de 9 zonnepanelen woon je bovendien energiezuinig en duurzaam.
Fijne woonomgeving
De woning ligt in een rustige en gezellige wijk, waar alles binnen handbereik is. Op loopafstand vind je openbaar vervoer en een gezellig café om even neer te strijken. Ook winkels en andere voorzieningen zijn goed bereikbaar, waardoor dit een heerlijke plek is om te wonen.
Indeling:
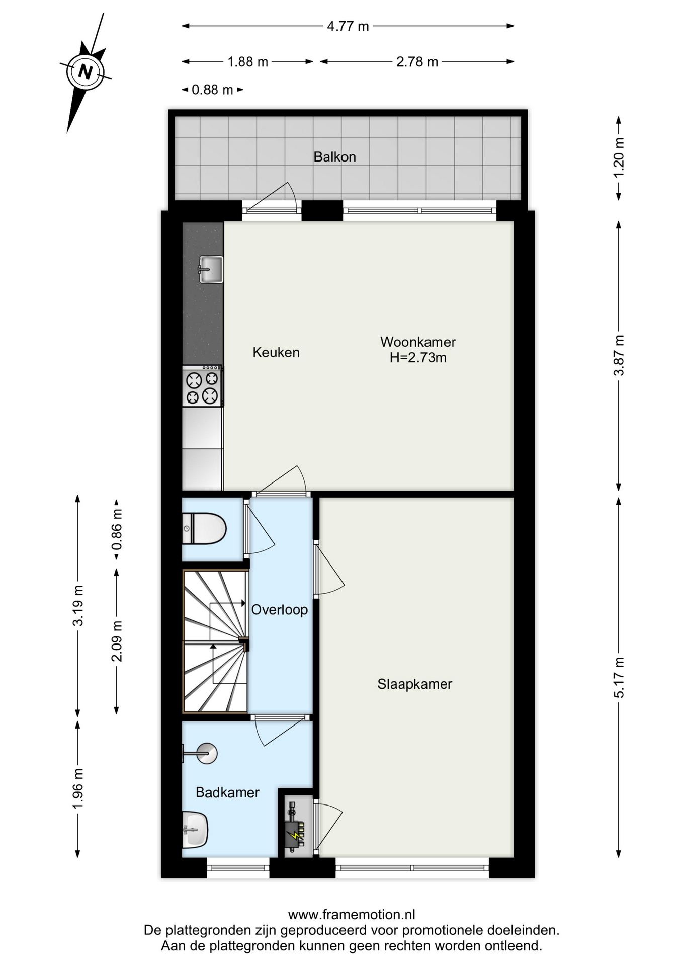
U betreedt de woning op de overloop van de eerste verdieping die toegang geeft tot alle vertrekken. Aan de voorzijde van de woning ligt de zeer ruime slaapkamer en de praktische badkamer. De woonkamer met luxe open keuken liggen aangrenzend aan het balkon op het zuiden aan de achterzijde van de woning. Tevens is er een handig seperaat toilet aanwezig op de overloop.
De tweede verdieping is evenals de eerste verdieping zeer praktisch gebruikt, zo zijn er drie slaapkamers die voldoende ruimte bieden. Ook is er een wasruimte en een toilet op deze verdieping.
Inzake de VvE: er is een KVK inschrijving en opstalverzekering, verder dient de VvE geactiveerd te worden door de nieuwe eigenaar maandbedrag €41 per maand.
Afmetingen:
Voor de exacte afmetingen verwijzen wij u graag naar de plattegronden.
Bijzonderheden:
- Woonoppervlakte van 86 m²;
- Balkon op het zuiden;
- Bouwjaar 1929;
- Energielabel C;
- 9 zonnepanelen;
- Gedeeltelijk voorzien van dubbel glas;
- Ouderdomsclausule;
- Asbestclausule;
- Oplevering: in overleg;
- Aan de bovenstaande tekst kunnen geen rechten worden ontleend.
Bezichtigingsafspraak?
Maak snel een afspraak voor een oriënterende bezichtiging van deze woning.
Is uw eigen woning nog niet verkocht? Wij komen graag bij u langs! Bel ons voor een vrijblijvend verkoopgesprek!
Meetinstructie
De Meetinstructie is gebaseerd op de NEN2580. De Meetinstructie is bedoeld om een meer eenduidige manier van meten toe te passen voor het geven van een indicatie van de gebruiksoppervlakte. De Meetinstructie sluit verschillen in meetuitkomsten niet volledig uit, door bijvoorbeeld interpretatieverschillen, afrondingen of beperkingen bij het uitvoeren van de meting.
* Bovenstaande informatie is door ons met de nodige zorgvuldigheid samengesteld. Onzerzijds wordt echter geen enkele aansprakelijkheid aanvaard voor enige onvolledigheid, onjuistheid of anderszins dan wel de gevolgen daarvan.
