Licht en ruim appartement met royaal dakterras in het hart van Rotterdam Overschie!
Bent u op zoek naar een verrassend ruim appartement in een rustige, groene omgeving maar toch dicht bij de stad? Dan is Burgemeester Wijnaendtslaan 70b in Rotterdam Overschie precies wat u zoekt!
Met wat handige handjes en liefde is dit het ideale appartement om volledig naar eigen stijl in te richten en te moderniseren.
Dit charmante appartement verdeeld over twee woonlagen biedt onder andere drie slaapkamers, een royale woonkamer én een fantastisch ruim dakterras. Perfect voor wie op zoek is naar comfort, licht en buitenruimte.
Gelegen in het gezellige en karakteristieke Overschie, combineert deze locatie het beste van twee werelden. U woont hier in een rustige en groene wijk met een dorps karakter, terwijl u binnen 15 minuten in het bruisende centrum van Rotterdam staat. In de directe omgeving vindt u winkels, scholen, sportfaciliteiten en horecagelegenheden.
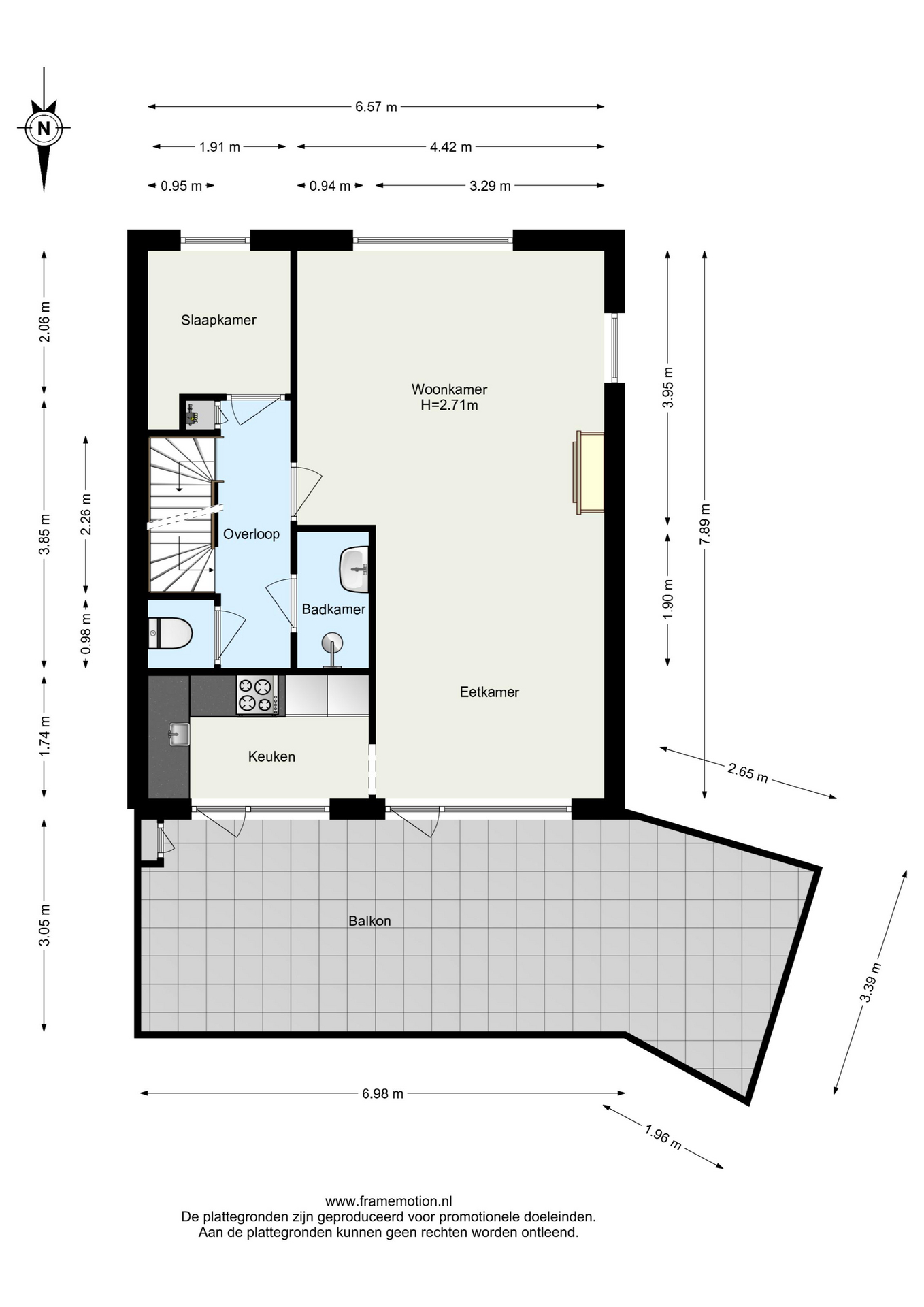
Indeling van de woning:
Begane grond (entree):
Via de eigen entree op de begane grond komt u in een compacte hal (hoogte 2.74 meter) met trapopgang naar de eerste woonlaag. Ideaal voor het veilig stallen van bijvoorbeeld een kinderwagen of de schoenen.
Eerste verdieping:
Op de overloop komt alles samen: Zo betreed je direct de ruime woonkamer met aangrenzend de eetkamer met de deur naar het absolute pluspunt van deze woning: het ruime dakterras van ca. 21 m². Een heerlijke plek om in alle rust te genieten van de zon of gezellig buiten te dineren. Grenzend aan het dakterras ligt de keuken, deze geeft evenals de eetkamer directe toegang tot het dakterras.
Verder vindt u op deze verdieping een slaapkamer, een praktische badkamer met douche en wastafel, en een separaat toilet.
Tweede verdieping:
Via een vaste trap bereikt u de bovenste woonlaag. Hier bevinden zich nog twee volwaardige slaapkamers, beide met karakteristieke schuine daken met dakkapellen wat zorgt voor extra ruimtelijkheid en veel lichtinval. Beide slaapkamers liggen aan de achterzijde. De overloop (nokhoogte 2.47 meter) biedt extra bergruimte en beschikt over een handige wasruimte, de overloop is voorzien van veel natuurlijke lichtinval vanwege het velux dakraam.
Afmetingen:
Voor de exacte afmetingen verwijzen wij u graag naar de plattegronden
Inzake de VvE: er is een KVK inschrijving en kopie opstalverzekering, verder dient de VvE geactiveerd te worden door de nieuwe eigenaar (indicatie maandbedrag €100)
Bijzonderheden:
- Bouwjaar: 1954;
- Zeer ruim dakterras;
- Eigen grond;
- Gehele woning voorzien van dubbele beglazing;
- Verwarming en warm water middels een cv-combiketel;
- Energielabel F;
- Airco in de woonkamer en in de grote slaapkamer;
- Ouderdomsclausule en asbestclausule van toepassing;
- Oplevering in overleg;
- Aan bovenstaande tekst kunnen geen rechten worden ontleend.
Bezichtigingsafspraak?
Maak snel een afspraak voor een oriënterende bezichtiging van deze woning.
Is uw eigen woning nog niet verkocht? Wij komen graag bij u langs! Bel ons voor een vrijblijvend verkoopgesprek!
Meetinstructie
De Meetinstructie is gebaseerd op de NEN2580. De Meetinstructie is bedoeld om een meer eenduidige manier van meten toe te passen voor het geven van een indicatie van de gebruiksoppervlakte. De Meetinstructie sluit verschillen in meetuitkomsten niet volledig uit, door bijvoorbeeld interpretatieverschillen, afrondingen of beperkingen bij het uitvoeren van de meting.
* Bovenstaande informatie is door ons met de nodige zorgvuldigheid samengesteld. Onzerzijds wordt echter geen enkele aansprakelijkheid aanvaard voor enige onvolledigheid, onjuistheid of anderszins dan wel de gevolgen daarvan.
