Comfortabel wonen nabij de winkelstraat – Burgemeester Baumannlaan 89c
Op een geweldige locatie, direct aan de gezellige winkelstraat, bevindt zich dit fijne 4-kamerappartement op de tweede verdieping. Met twee balkons, een praktische indeling en moderne voorzieningen is dit een woning waar je je direct thuis zult voelen.
De Burgemeester Baumannlaan is een levendige straat in het hart van Overschie, bekend om haar gevarieerde aanbod aan leuke winkels en gezellige eetgelegenheden. Je vindt er alles van ambachtelijke bakkers en delicatessenzaken tot trendy koffietentjes, kapsalons en kleine boetiekjes. Ook voor de dagelijkse boodschappen is de laan ideaal, met diverse supermarkten en speciaalzaken binnen handbereik.
Indeling:
Bij binnenkomst tref je direct aan de linkerzijde de eerste slaapkamer. Aan de rechterzijde zit een compacte berging met de meterkast. Aansluitend ligt de tweede slaapkamer, die toegang biedt tot een zonnig balkon op het zuidwesten – ideaal om in de middag en avond te genieten van de zon.
De keuken ligt naast de eerste slaapkamer en is voorzien van een inductieplaat, oven, wasmachineaansluiting, wasbak en een afzuigkap. Vanuit de keuken bereik je de badkamer met een nette douche en wastafelmeubel. Het toilet bevindt zich seperaat naast de keuken.
De eetkamer grenst aan een tweede balkon, gericht op het noordoosten, perfect voor een kop koffie in de ochtendzon. Vanuit de eetkamer loop je door naar de lichte, ruime woonkamer.
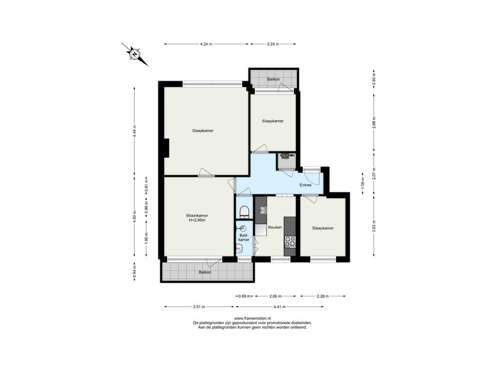
Afmetingen:
Voor de exacte afmetingen verwijzen wij u graag naar de plattegronden
Bijzonderheden:
- Bouwjaar: 1956;
- Eigen grond;
- Berging;
- Gehele woning voorzien van HR++ beglazing;
- Verwarming en warm water middels een cv-combiketel, Remeha 2012;
- Energielabel C;
- 2 balkons, (noord-oost aan de achterzijde en zuid-west aan de voorzijde);
- Ouderdomsclausule en asbestclausule van toepassing;
- Actieve VvE, bijdrage €121- per maand;
- Oplevering in overleg;
- Aan bovenstaande tekst kunnen geen rechten worden ontleend.
Bezichtigingsafspraak?
Maak snel een afspraak voor een oriënterende bezichtiging van deze woning.
Is uw eigen woning nog niet verkocht? Wij komen graag bij u langs! Bel ons voor een vrijblijvend verkoopgesprek!
Meetinstructie
De Meetinstructie is gebaseerd op de NEN2580. De Meetinstructie is bedoeld om een meer eenduidige manier van meten toe te passen voor het geven van een indicatie van de gebruiksoppervlakte. De Meetinstructie sluit verschillen in meetuitkomsten niet volledig uit, door bijvoorbeeld interpretatieverschillen, afrondingen of beperkingen bij het uitvoeren van de meting.
* Bovenstaande informatie is door ons met de nodige zorgvuldigheid samengesteld. Onzerzijds wordt echter geen enkele aansprakelijkheid aanvaard voor enige onvolledigheid, onjuistheid of anderszins dan wel de gevolgen daarvan.
